Case a schiera - Cappelle dei Marsi

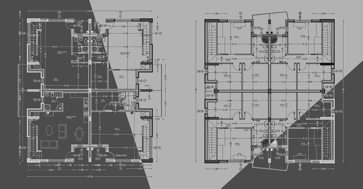
Il complesso immobiliare, ubicato nella lottizzazione di Via Paolo VI a Cappelle dei Marsi (Scurcola Marsicana AQ). E' composto da 8 unità immobiliari a schiera su tre livelli, di cui uno seminterrato e due fuori terra. Le strutture sono in cemento armato secondo la normativa antisismica. Ogni edificio è completato da uno spazio verde a servizio delle abitazioni.

Categorie:
Residenziale
Incarico Progetto: Progettazione Architettonica - Interior Design - Direzione Lavori;
Luogo: Scurcola Marsicana
Committente: Sam s.r.l.
Importo: € 4.200.000,00
Timeline:

2010

Ubicazione:Cappelle dei Marsi - AQ
Intervento: Restauro