OFFICE BUILDING

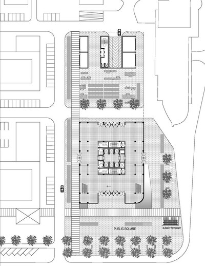
The building for residential and office use, commissioned by a private client, is located in the urban center of Bucharest (Romania). The supporting structure in anti-seismic steel, the curtain wall, the advanced plant engineering and the use of materials with low environmental impact are the elements that classify it as an eco-sustainable building.

Categories:
Overseas
Commerciale e direzionale;
Project assignment: Progetto Preliminare;
Place: Bucarest
Client: Privato
Customer: Taddei spa
Amount: € 0
Timeline:

2011

Location:Bucarest - Romania
Intervention: Renovation

Gallery